中文站 English Français Русский Español العربية Português Deutsch
能成就未来!

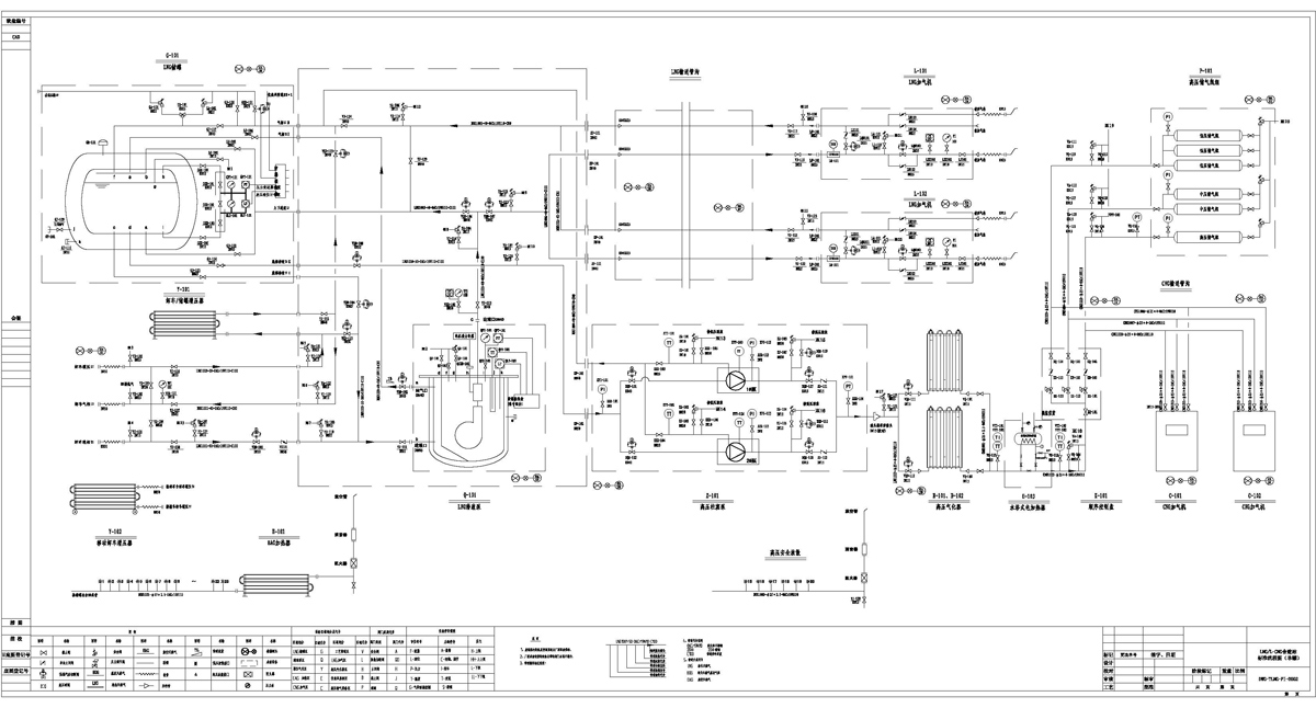
概述
LNG/L-CNG 加气站是集 LNG 加注、CNG 加气于一体,工艺系统由 LNG 工艺和 L-CNG 工艺组成。LNG 工艺主要包括:LNG 储罐、加液机、卸车(储罐)增压气化器、低温潜液泵、低压EAG 加热器、低压放散系统管路及阀门等;L-CNG 工艺包括:高压柱塞泵、高压气化器、顺序控制盘、储气瓶组、加气机、高压 EAG 加热器、高压放散系统、管路及阀门等。
加气站的工艺系统和PLC 控制系统、安全监控系统、仪表风系统、收银系统等各个系统组合在一起, 共同实现了对加气站的控制和运行要求。
加气站工艺流程图

常用配置
| 序号 | 材料名称 | 规格型号 | 数量 | 备注 |
| 1 | 低温(卧式)储罐 | 1.2MPa 60m³ 进口根部阀 | 1 个 | |
| 2 | 潜液泵撬 | GYQ-Q-I,带 1 台 TC34 潜液泵 | 1 套 | TC34泵,带防雨棚, 发泡保冷 |
| 3 | 卸车(储罐)增压器 | 300Nm3/h | 1 台 | 与储罐成撬 |
| 4 | 移动式卸车增压器 | 80Nm3/h | 1 台 | |
| 5 | 低压 EAG 加热器 | 120Nm3/h | 1 台 | 与储罐成撬 |
| 6 | 低压放散系统 | 1 套 | 含消声器、阻火器 | |
| 7 | 高压放散系统 | 1 套 | 含消声器、阻火器 | |
| 8 | LNG 加气机 | JLJ-101 | 2 台 | |
| 9 | 高压柱塞泵撬 | GYQ-Z-II,带两台柱塞泵 1500L/H | 1 套 | |
| 10 | 高压气化器 | 1500Nm3 /h | 2 台 | |
| 11 | 高压 EAG 加热器 | 120Nm3/h | 1 台 | |
| 12 | 高压水浴式电加热器 | 1500Nm3 /h | 1 台 | |
| 13 | 顺序控制盘 | 2000Nm3 /h | 1 台 | |
| 14 | 储气瓶组 | 1.33m3×6 | 1 组 | |
| 15 | CNG 加气机 | JQJ-C-II | 2 台 | |
| 16 | 卸车金属软管 | 6000mm | 3 根 | |
| 17 | 现场仪器仪表 | 1 套 | ||
| 18 | 现场工艺管道 | 06Cr19Ni10 | 1 套 | |
| 19 | 现场阀门 | 1 套 | ||
| 20 | PLC 站控系统 | 含 PLC 控制柜、变频器柜、PLC 从站柜、配电柜、控制台等 | 1 套 | |
| 21 | IC 卡管理系统 | 含电脑及管理软件 | 1 套 | |
| 22 | 安全监控系统 | 11 个燃气检测,2 个火焰检测,配套控制器。视频监控摄像头配套主机。 | 1 套 | |
| 23 | 仪表风系统 | 0.8Mpa 出口压力 | 1 套 | |
| 24 | 现场防爆接线系统 | 1 套 |
PLC 站控系统常用元器件
| PLC 控制柜:主要元器件 | 变频器柜:主要元器件 | ||
| 1 | CPU 控制器 | 1 | 空开 |
| 2 | 输入、输出模块 | 2 | 多功能电力表 |
| 3 | 信号转换模块 | 3 | 变频器 |
| 4 | 工业交换机 | 4 | 电抗 |
| 5 | 开关电源 | 5 | 电流互感器 |
| 6 | 中间继电器 | 6 | 熔断器 |
| 7 | 空开 | 7 | 防雷保护器 |
| 8 | 隔离电源 | 8 | 滤波器 |
| 9 | 触摸屏 | ||
| 10 | 防雷保护器 | ||
三分钟了解车用CNG和LNG各维度的详细对比
天然气被压缩到200年MPa高压天然气称为压缩天然气(CNG),CNG储存在高压钢瓶中,汽车被称为燃料CNG汽车;天然气...
LNG汽车发动机几类故障分析与防范措施
LNG发动机爆燃的原因分析如下:(1)用的LNG燃料质量差,或抗爆性能下降;分析火花塞的污损和裂纹损坏LNG在发动机正常...
LNG发动机的特点及合理使用分享
LNG 发动机具有以下特点:一是天然气耐爆性好,辛烷值可达130RON,可达到发动机的压缩比 11~12、介于汽油机和柴...
一分钟带您了解LNG发动机燃料供给系统主要部件及其功用
LNG 发动机燃料供给系统主要是协同储液罐汽化器低压电磁阀电控调压器混合器节气门等部件的协同。
LNG(液化天然气)汽车的使用及维修常识
随着国家对汽车排放要求的不断提高,接近零排放LNG(液化天然气)客车正成为国内客车市场的新宠,另一方面,LNG由于其明显...
LNG加气站设备LNG储罐介绍
LNG储罐是LNG加气站的重要储存容器是加气站的重要组成部分,今天让我们详细了解一下:
02-12
2023
LNG成套设备是指将LNG生产、储存、加工、输送等过程的设备组成的一个系统。这种设备通常由一系列专业...
08-11
2022
今天给大家分享一份LNG加气站和L-CNG加气站安全生产责任制度模板,大家可以根据公司实际情况借鉴采...
08-08
2022
众所周知,汽油乘用车的替代长期以来一直在推广CNG汽车主战场。在我国702万辆天然气汽车(2021年...
08-07
2022
目前我国CNG近两年来,汽车已进入稳定高速发展期LNG汽车已成为社会和媒体关注的焦点。比较和探索两者...
08-05
2022
LNG天然气净化低温液化后形成的液化天然气需要储存在特殊的保温瓶中,储存密度高,体积约为同量气体天然...
08-04
2022
今年上半年,美国液化天然气对欧洲大幅增加。(LNG)出口超过澳大利亚和卡塔尔,跃居世界第一。
融众家所长,能成就未来
诚信赢天下
第一次合作是缘分,也是尝试长期合作才是以诚信为基础的互相信任。
优秀的团队
公司拥有一支敬业、高效、开拓、创新的业务团队,一心为用户排忧解难
J9.COM智能云系统
J9.COM智能云系统时刻守护你企业的生产运行,为您企业管理和设备运行提出合理化建议
专业的综合维保商
专业的加气站综合服务维保商,拥有15年以上的加气站从业经验
公众上市公司
J9.COM是一家上市的能源设备维保商公众公司,信誉有保障
CNG、LNG一站式服务
机电一体、多专业整合、一站式服务让你省时、省力,更省心
